г. Киров

ул. Герцена 56

114,35

Площадь кв.м.

2

Этажи

5

Комнаты

1

Ванные

Гараж

Двухэтажный дом, продуманная планировка и большие комнаты.

Фасад в данном проекте можно легко поменять на любой декоративный материал (штукатурка, кирпич, фасадная плитка и т.п.). Также, по Вашему пожеланию, мы легко можем внести изменения в этот проект.
Описание
Первый этаж
Второй этаж
Фасады

Фундамент — деревянный ростверк на винтовых сваях

Несущие стены — SIP панель (174мм)

Покрытие — битумная черепица

Наружная отделка — штукатурка

Описание
Первый этаж
Второй этаж
Фасады
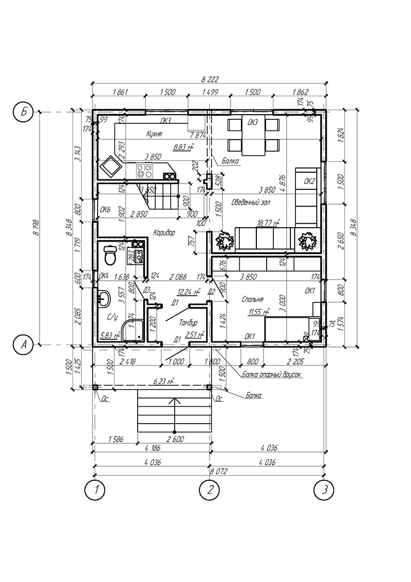
  1. Коридор 12,24м2
  2. Кухня 8,83м2
  3. Обеденный зал 18,77м2
  4. С/у 5,83м2
  5. Тамбур 2,51м2
  6. Спальня 11,55м2
Описание
Первый этаж
Второй этаж
Фасады
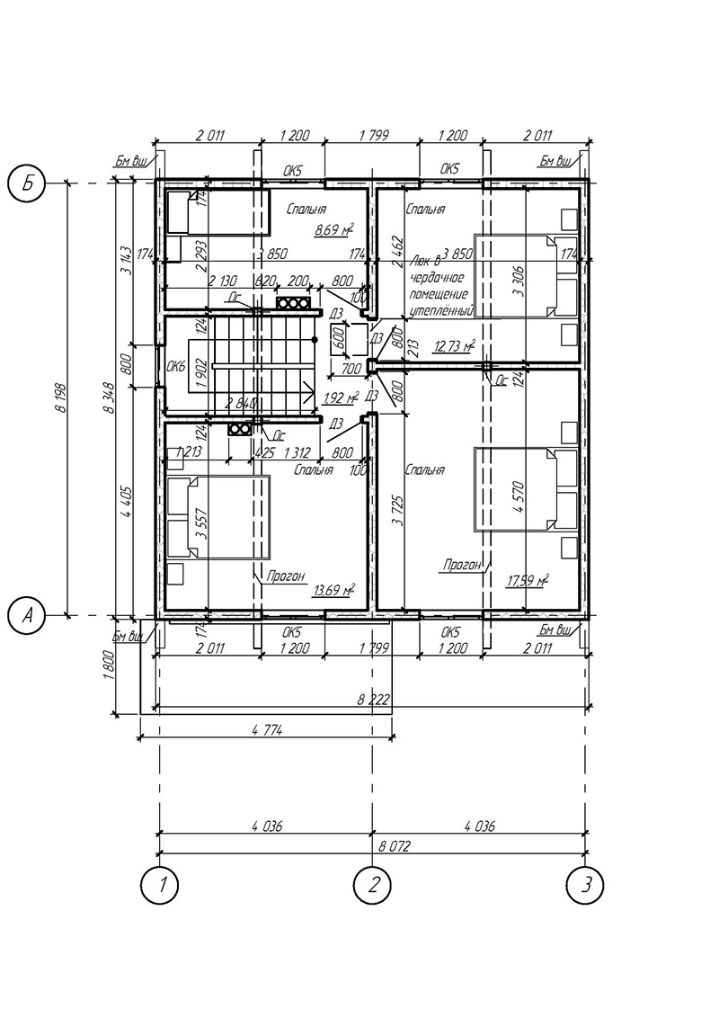
  1. Спальня 8,69м2
  2. Спальня 12,73м2
  3. Спальня 13,69м2
  4. Спальня 17,59м2
  5. Коридор 1,92м2
Описание
Первый этаж
Второй этаж
Фасады