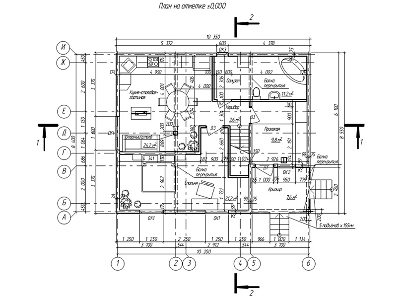
Фундамент — ленточный ж/б
Несущие стены — SIP панель (174мм)
Покрытие — битумная черепица
Наружная отделка — штукатурка
г. Киров
ул. Герцена 56
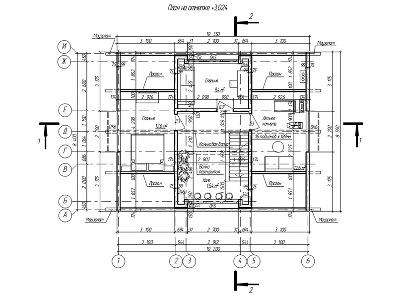
Фундамент — ленточный ж/б
Несущие стены — SIP панель (174мм)
Покрытие — битумная черепица
Наружная отделка — штукатурка





