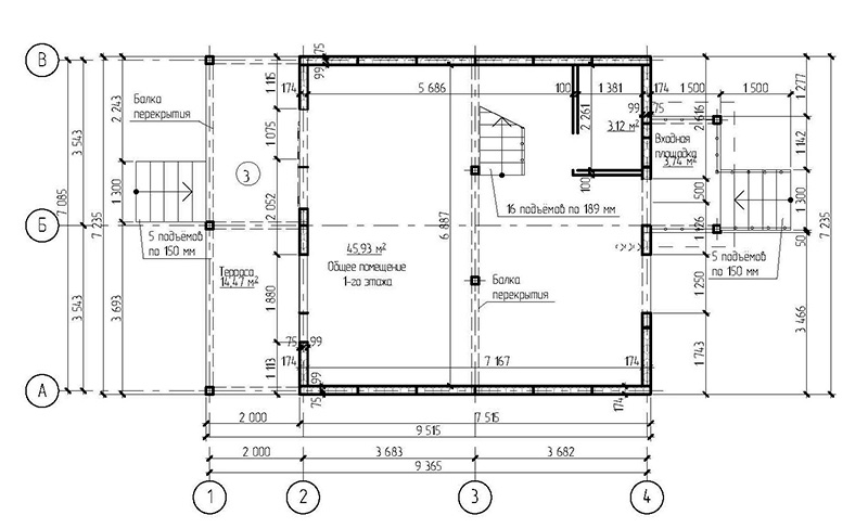
Фундамент — деревянный ростверк на винтовых сваях
Несущие стены — SIP панель (174мм)
Покрытие — битумная черепица
Наружная отделка — штукатурка, деревянные накладки "под фахверк"
г. Киров
ул. Герцена 56
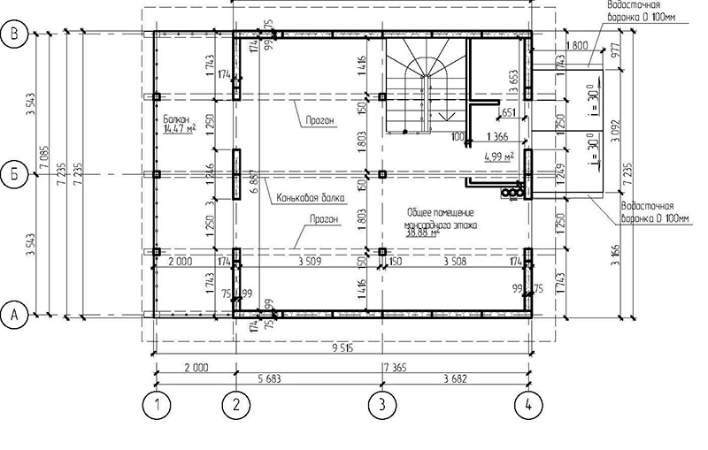
Фундамент — деревянный ростверк на винтовых сваях
Несущие стены — SIP панель (174мм)
Покрытие — битумная черепица
Наружная отделка — штукатурка, деревянные накладки "под фахверк"





