Фундамент — ростверк на винтовых сваях
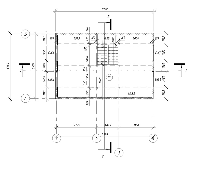
Несущие стены — SIP панель (174мм)
Покрытие — битумная черепица
Наружная отделка — декоративная штукатурка
г. Киров
ул. Герцена 56
Фундамент — ростверк на винтовых сваях
Несущие стены — SIP панель (174мм)
Покрытие — битумная черепица
Наружная отделка — декоративная штукатурка





