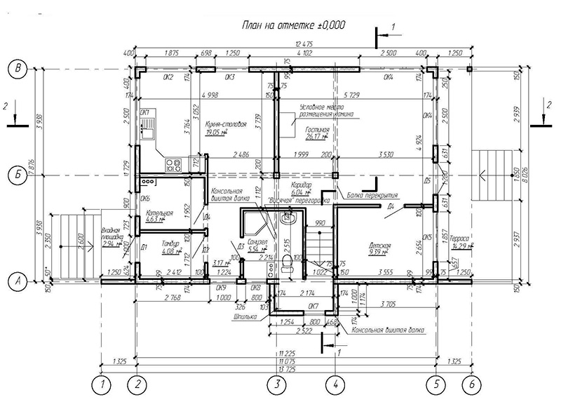
Фундамент — деревянный ростверк на ж/б столбах
Несущие стены — SIP панель (174мм)
Покрытие — металочерепица
Наружная отделка — штукатурка, облицовочная плитка, природный камень
г. Киров
ул. Герцена 56
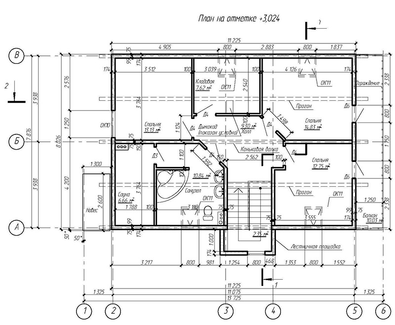
Фундамент — деревянный ростверк на ж/б столбах
Несущие стены — SIP панель (174мм)
Покрытие — металочерепица
Наружная отделка — штукатурка, облицовочная плитка, природный камень





