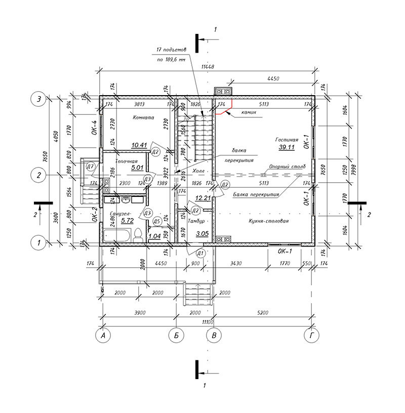
Фундамент — ж/б плита
Несущие стены — SIP панель (174мм)
Покрытие — битумная черепица
Наружная отделка — штукатурка, облицовочная плитка, природный камень
г. Киров
ул. Герцена 56
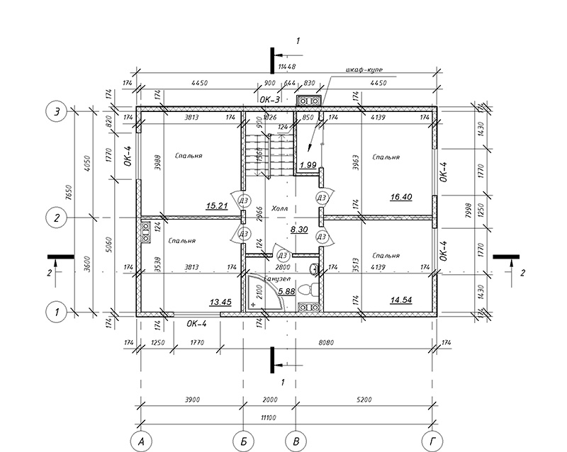
Фундамент — ж/б плита
Несущие стены — SIP панель (174мм)
Покрытие — битумная черепица
Наружная отделка — штукатурка, облицовочная плитка, природный камень





