Фундамент — деревянный ростверк на винтовых сваях
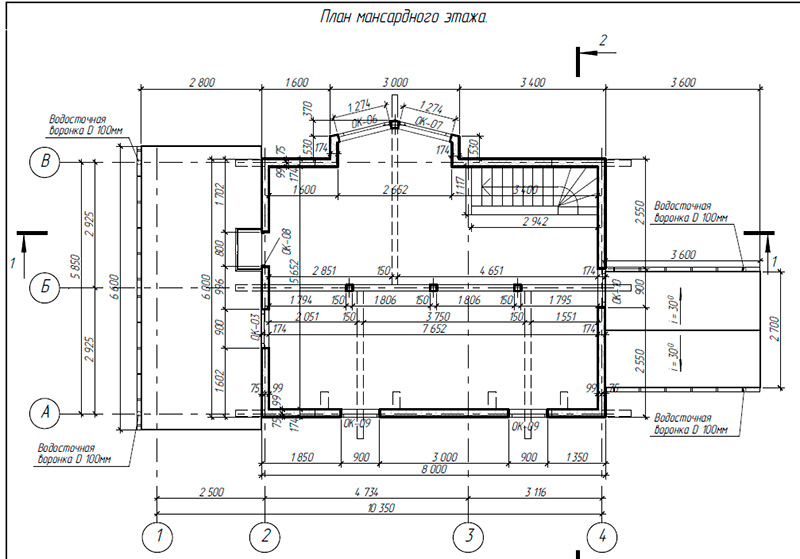
Несущие стены — SIP панель (174мм)
Покрытие — мягкая черепица
Наружная отделка — фасадные панели.
г. Киров
ул. Герцена 56
Фундамент — деревянный ростверк на винтовых сваях
Несущие стены — SIP панель (174мм)
Покрытие — мягкая черепица
Наружная отделка — фасадные панели.





