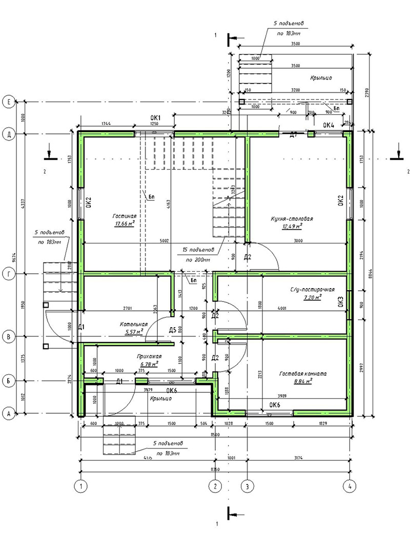
Фундамент — деревянный ростверк на винтовых сваях.
Несущие стены — SIP панель (174мм).
Покрытие — мягкая черепица.
Наружная отделка — панели под кирпич(бежевый).
г. Киров
ул. Герцена 56
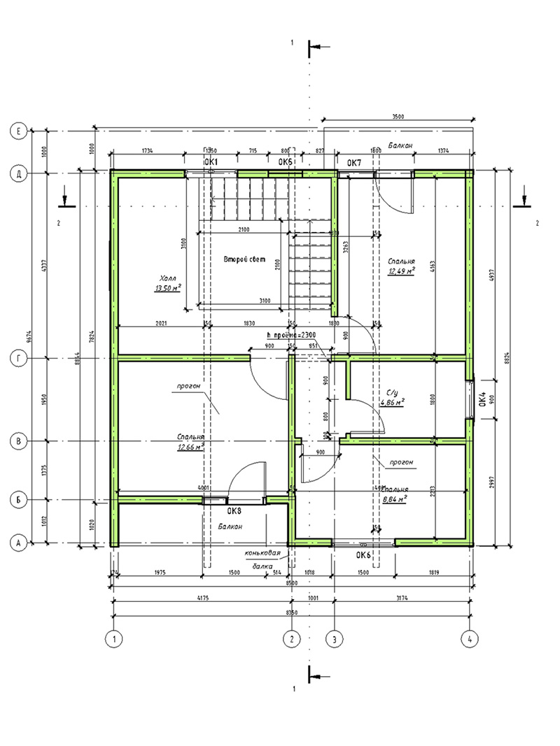
Фундамент — деревянный ростверк на винтовых сваях.
Несущие стены — SIP панель (174мм).
Покрытие — мягкая черепица.
Наружная отделка — панели под кирпич(бежевый).





